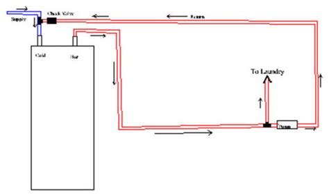
Hot Water Recirculation Loop Diagram

Related :