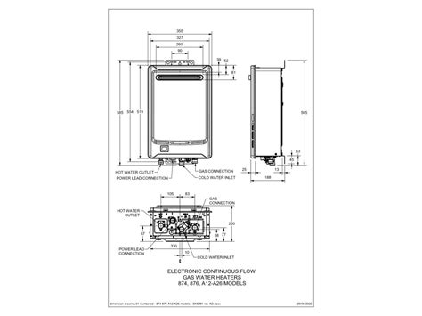
Rheem Metro 16l 60 Degrees Gas Continuous Flow Hot Water System Natural Gas From Reece

Related :